Shad Thames

Yesterday & Today
How we lived then & How we live now
kiwi
Posts: 5613
Joined: Sat Jan 14, 2017 2:53 am

Re: Shad Thames

Postby kiwi » Thu Feb 01, 2018 4:01 am

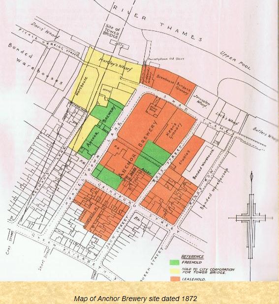
COURAGES BREWERY.
Thames Riverscape showing Anchor Brewhouse, Horsleydown Old Stairs and Portland Wharf: 1937. The Anchor Brewhouse was a small brewery by Shad Thames in Horsleydown, near Tower Bridge. The brewhouse was bought by John Courage.
In 1955 Courage merged with its rival Barclays, Perkins & Co previously known as the Anchor Brewery (more information in Redcross Way Topic), moving to Shad Thames, in 1962.
After the Courage Brewery at Horsleydown was closed in 1981, the riverside frontage was retained while most of the brewery buildings to the rear were demolished. The riverside buildings were restored as far as possible to their original appearance and the chimney retained. The central section had been badly damaged by bombs during World War II and it was replaced by a modern steel and glass section, together with the projecting wooden boxes which originally allowed materials to be winched up from the barges in the river below. Additionally, a large vertical glass bay was added to the original west elevation overlooking Tower Bridge. Anchor Brewhouse now consists of 62 apartments, including studios, maisonettes, one- and two-bedroom apartments and a large penthouse on three floors, including the whole ninth floor. A new development, Tower Bridge Piazza, was constructed on the cleared area to the south of Shad Thames.
SHAD THAMES 1937,COURAGES BREWERY   X.jpg
SHAD THAMES 1937, COURAGES BREWERY
The great Courage dray horses are commemorated by this statue 'Jacob' in Queen Elizabeth Street where the stables had been situated..jpg
The great Courage dray horses are commemorated by this statue 'Jacob' in Queen Elizabeth Street where the stables had been situated.
SHAD THAMES..png

Shad Thames, Maggie Blake’s Causeway, 2020, near Horselydown Lane and opposite the old Courage’s Brewery.  X..png
Shad Thames, Maggie Blake’s Causeway, 2020, near Horselydown Lane and opposite the old Courage’s Brewery.
Last edited by kiwi on Tue Jan 04, 2022 2:30 am, edited 2 times in total.

kiwi
Posts: 5613
Joined: Sat Jan 14, 2017 2:53 am

Re: Shad Thames

Postby kiwi » Sun Feb 04, 2018 8:15 am

Cold Store, Union Cold Store, Bermondsey Wall, Bermondsey (1982)  X.jpg
Union Cold Store, Bermondsey Wall, Bermondsey 1982.

kiwi
Posts: 5613
Joined: Sat Jan 14, 2017 2:53 am

Re: Shad Thames

Postby kiwi » Fri Feb 16, 2018 2:04 am

Horsleydown lane, Courages Brewery.  More pictures in Horsleydown Topic. X.jpg
Horsleydown lane, Courages Brewery. More pictures in Horsleydown Topic.

kiwi
Posts: 5613
Joined: Sat Jan 14, 2017 2:53 am

Re: Shad Thames

Postby kiwi » Fri Mar 16, 2018 11:02 pm

COURAGES BREWERY 1982  X.jpg
COURAGES BREWERY 1982
ANCHOR 3.jpg

Shad Thames, Courage’s Brewery.   1  X..png
Shad Thames. (Brewery).
Shad Thames, Courage’s Brewery.  2  X..png
Last edited by kiwi on Thu Apr 21, 2022 9:56 pm, edited 2 times in total.

kiwi
Posts: 5613
Joined: Sat Jan 14, 2017 2:53 am

Re: Shad Thames

Postby kiwi » Mon Mar 19, 2018 2:52 am

Shad Thames, a street between warehouses in Bermondsey c.1936.jpg
Shad Thames, a street between warehouses in Bermondsey c.1936
Shad Thames, Warehouses, Bermondsey 1980.  X..jpg
Shad Thames, Warehouses, Bermondsey 1980.

kiwi
Posts: 5613
Joined: Sat Jan 14, 2017 2:53 am

Re: Shad Thames

Postby kiwi » Mon Jul 01, 2019 11:02 pm

Pictures taken from Tooley Street.
SHAD THAMES,corner with Tooley Street  1  X.jpg
Shad Thames,corner with Tooley Street,
Shad Thames corner with Shad Thames  2018, same location as picture 1  X.png
Same location 2018.

Shad Thames left 1976. Jamaica Wharf & Dockhead Wharf were along the left-hand side.   X.png
Shad Thames left 1976. Jamaica Wharf & Dockhead Wharf were along the left-hand side.
Shad Thames from Tooley Street 2019,same location as the 1976 picture.  X.png
Shad Thames from Tooley Street 2019,same location as the 1976 picture.

In the 1930s, Kalmars was Lime Wharf then down the right side Rich Mill, Dockhead Wharf, Shuters Wharf and St Georges Wharf.
Shad Thames, Bermondsey, No 2 Wharf, c1980s.   X.png
C1980s,before it became Jamaica Wharf.
Last edited by kiwi on Tue Mar 24, 2020 3:26 am, edited 3 times in total.

Sean.Byrne
Posts: 229
Joined: Sun Dec 08, 2019 1:23 pm
Location: Toronto

Re: Shad Thames

Postby Sean.Byrne » Fri Dec 20, 2019 8:32 am

A view of Shad Thames street with Victorian era gantries connecting old warehouse buildings, Bermondsey
shad 2.jpg

SHAD THAMES.jpg

Sean.Byrne
Posts: 229
Joined: Sun Dec 08, 2019 1:23 pm
Location: Toronto

Re: Shad Thames

Postby Sean.Byrne » Wed Jan 15, 2020 11:55 am

1906 Shad Thames Pumping Station Newell's Wharf, located on Maguire Street, it is still in operation today.

zzzzzzz.jpg


1906 Bovill and Sons premises on New Square, which is no longer there but has been replaced by Maguire Street. I could not find any history on Bovill and Sons in that area.

zz11.JPG


1939 Pumping Station machinery

zz11.JPG
zzz222.jpg

kiwi
Posts: 5613
Joined: Sat Jan 14, 2017 2:53 am

Re: Shad Thames

Postby kiwi » Wed Mar 18, 2020 11:42 pm

Bovill & Sons (above) was actually in Coles Lower Wharf, left of Newell's Wharf which is left of the stairs. Coles Upper Wharf (middle) and Coventry's Wharf (right). Coles Lower Wharf extended across Shad Thames into New Square as stated above.
Shad  Thames,inland side.  X.png

Shad Thames, Wheat Wharf, originally known as Coles Upper Wharf, this was the largest granary in Bermondsey in the mid-19th century.   X.png
Shad Thames, Wheat Wharf, originally known as Coles Upper Wharf, this was the largest granary in Bermondsey in the mid-19th century.
Shad Thames, New Square, c1906.  X..png
Shad Thames, New Square, c1906.
Last edited by kiwi on Tue Feb 20, 2024 1:57 am, edited 2 times in total.

kiwi
Posts: 5613
Joined: Sat Jan 14, 2017 2:53 am

Re: Shad Thames

Postby kiwi » Wed Sep 16, 2020 4:27 am

Shad Thames, opposite Curlew Street.   X.png
Shad Thames, opposite Curlew Street.

Coles Upper Wharf left of Coventry's Wharf.


Return to “Buildings & Streets”

Who is online

Users browsing this forum: No registered users and 113 guests